Sintesii

Nos prestations

Nous adaptons nos prestations en fonction des missions qui nous sont confiées.

 Audit énergétique 

Nous réalisons des missions d’audit énergétique appliquées aux façades permettant d’évaluer l’état réel des parois extérieures, de détecter les désordres existants ou potentiels et de définir les actions correctives nécessaires. Un audit de façade poursuit plusieurs finalités complémentaires :

  • Sécurité des occupants et des usagers : repérer les caractéristiques des composants afin d’en garantir la protection contre les risques de chute, contre l’incendie ou autres…

  • Diagnostic des pathologies : identifier fissures, infiltrations, décollements, corrosion des ancrages ou dégradations liées aux cycles thermiques,

  • Amélioration de la performance énergétique : évaluer les déperditions thermiques, la qualité de l’isolation et l’étanchéité à l’air,

  • Préservation de l’esthétique et du patrimoine : analyser l’impact des altérations visuelles (salissures, décoloration, vieillissement des matériaux).

 Etude de faisabilité  

L’étude de faisabilité est étroitement liée à l’audit d’un bâtiment. En effet, elle permet de vérifier la pertinence technique, économique, réglementaire et esthétique des solutions envisagées avant de s’engager dans les travaux. L’étude de faisabilité a pour but d’analyser et de comparer différentes options de conception ou de rénovation des façades afin de déterminer la solution la plus adaptée au projet. Ses principaux objectifs sont :

  • Évaluer la performance énergétique et acoustique : analyse de l’environnement du projet et quantification des caractéristiques propres à la solution proposée,
  • Garantir la durabilité et la sécurité : sélection de matériaux résistants aux intempéries, au feu, et conformes aux normes en vigueur,
  • Vérifier la faisabilité technique : compatibilité des systèmes constructifs (façade rideau, bardage ventilé, isolation thermique par l’extérieur, etc.) avec la structure existante,
  • Apprécier l’impact esthétique et urbain : intégration architecturale dans l’environnement, respect du cahier des charges architectural et patrimonial,
  • Analyser les coûts : estimation budgétaire des différentes solutions, coût global incluant la maintenance et la durée de vie des matériaux.
  •  

Assistance à maîtrise
d'ouvrage

Nous assistons les Maîtres d’ouvrage, publics ou privés, dans leurs projets de construction neuve ou de rénovation, dans la définition de leurs besoins, et de l’avancement de leurs projets.

Notre mission peut aussi contenir :

  • la réalisation de diagnostics techniques et d’études de faisabilité,
  • le montage de modes opératoires et de budgets prévisionnels,
  • la mise en place d’une cellule de synthèse,
  • la réalisation d’audits. 

Maitrise d’œuvre

En intégrant l’équipe de Maîtrise d’œuvre, nous ajoutons nos compétences techniques en termes de conception, de choix des matériaux et dispositions constructives, et de connaissances des réglementations en vigueur dans les ouvrages relatifs à l’Enveloppe du bâtiment. 
Nous pouvons également réaliser la rédaction des pièces contractuelles des études BIM telles que la Convention BIM ou bien le Cahier des charges BIM, de manière à cadrer les attentes sur cet aspect du projet, tout en contrôlant et en réalisant la synthèse de l’ensemble des maquettes BIM de l’équipe.

Notre accompagnement se traduit par

  • la conception des ouvrages relatifs à l’enveloppe du bâtiment
  • l’établissement de notes de pré-dimensionnement des structures
  • la production de plans de principe, intégrant les détails spécifiques
  • le montage du budget estimatif des ouvrages étudiés
  • la production des pièces écrites relatives aux lots qui concernent l’enveloppe du bâtiment
  • le suivi de l’opération par l’émission de VISA, visites sur site, participation aux réunions durant la phase d’exécution
  • la production des pièces écrites relatives aux études du projet
  • le suivi des livrables BIM réalisés par les entreprises réalisatrices de travaux, tout en animant les réunions spécifiques.

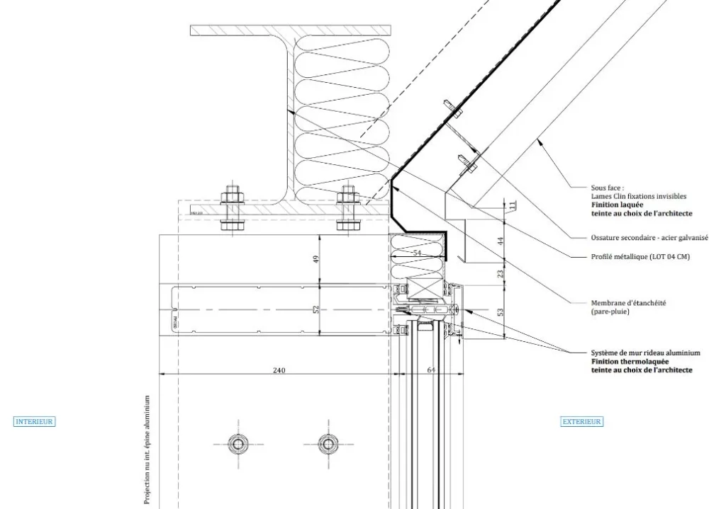
Etudes d’exécution

Durant la phase d’exécution du projet, nous travaillons pour le compte d’entreprises de réalisation afin de les accompagner au mieux dans le déroulement du chantier. Pour cela nous assurons :
  • l’établissement de notes de dimensionnement
  • la production de plans et détails d’exécution
  • la participation aux réunions de chantier
  • l’accompagnement de nos clients dans les démarches spécifiques (ATEX, obtention d’approbations du Bureau de contrôle)
  • la réalisation des maquettes EXE, tout en y ajoutant les paramètres nécessaires pour garantir leurs conformité par rapport aux Cahier des Charges du projet
  • la réalisation du dossier DOE des études 2D et BIM.

Pourquoi travailler avec nous ?

Nos compétences peuvent être mises en pratique à chaque étape d’un projet.

En tant qu’assistant à maîtrise d’ouvrage, nous réalisons des études de faisabilité, des enveloppes budgétaires
ou bien encore des études spécifiques pour l’optimisation des lots constituants le clos-couvert.